Glasgow City Centre Apartment
Preview only — see all hotel photos
See all 31 photos
Mostra hotel sulla mappa
Glasgow City Centre Apartment
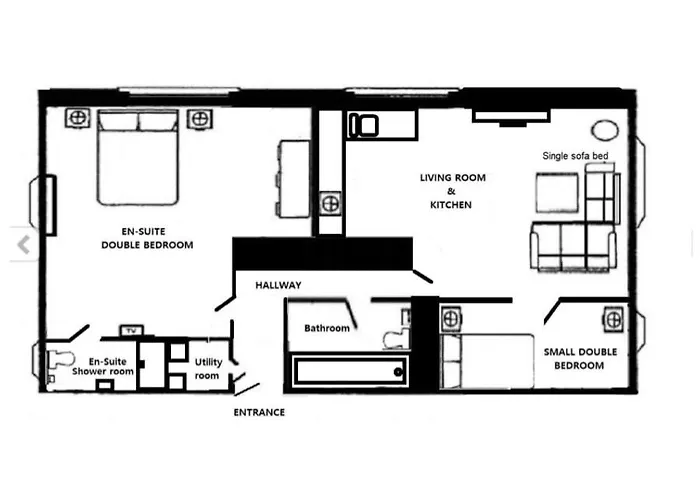
Glasgow City Centre Apartment, di 55 m^2, si trova nel centro di Glasgow e offre un rapido accesso al Museo della Polizia di Glasgow, che si trova a circa 5 minuti a piedi. L'appartamento dispone di Wi-Fi nelle camere.
La struttura è situata in una zona residenziale, a circa 5 minuti in macchina da Arches Theatre e a una distanza di 3 km dal Museo di Riverside. Gli ospiti possono raggiungere facilmente la Sharmanka Kinetic Theatre, che è a circa 5 minuti a piedi.
Dotato di un bar sulla terrazza e un salottino, l'alloggio presenta un camino in pietra, oltre a un divano. Inoltre, questa struttura offre servizi multimediali, tra cui una TV a schermo piatto con canali satellitari, permettendo così agli ospiti di rilassarsi a loro piacimento. Quest'appartamento offre 2 camere da letto dotate di cuscini in piuma. Gli ospiti apprezzeranno i 2 bagni con una cabina doccia, un bagno alla francese e una vasca da bagno. Inoltre, il bagno vanta asciugacapelli.
Gli ospiti possono usufruire dei servizi per la preparazione di tè/caffè dell'appartamento, oltre che della cucina dotata di un microonde, una macchina per caffè e tè e utensili da cucina. Il Glasgow City Centre Apartment si trova a soli 600 metri dalla stazione degli autobus Central e a pochi metri dalla stazione della metropolitana Buchanan Street.
Servizi
Top Servizi
- Wi-Fi gratuito
- Check-in/Check-out veloci
- Adatto ai bambini
- Animali non ammessi
Servizi
- Struttura non fumatori
- Parcheggio
- Check-in/check-out VIP
- Check-in/check-out veloci
- Animali non ammessi
- Sicurezza
- Rivelatori di fumo
- Bollitore elettrico
- Asciugatrice
- Pentolame/Utensili da cucina
- Assistenza per tour/Servizio di biglietteria
- Wi-Fi gratuito nelle camere
- Riscaldamento
- Area soggiorno
- Set per la preparazione di tè e caffè
- Tavolo da pranzo
- Set da stiro
- Lavatrice
- TV a schermo piatto
- Lettini
- Pavimento in moquette
Politica
Mappa
Attrazioni locali
Attrazioni turistiche
- Cattedrale di San Mungo (950 m)
- Gallery of Modern Art (650 m)
- Prince's Square (700 m)
- Hampden Park (3,4 km)
- Buchanan Galleries (1000 m)
- Merchant City (200 m)
- Kings Theatre Glasgow (1,8 km)
- Museum of Transport (3,9 km)
- Saint Enoch Centre (600 m)
- The Glasgow School of Art (1,6 km)
Aeroporti
- Aeroporto di Glasgow (16 km)
Stazioni ferroviarie
- Argyle Street Railway Station (400 m)
Recensioni
100% Recensioni Verificate