Glasgow City Centre Apartment
Preview only — see all hotel photos
See all 31 photos
Show hotel on map
Glasgow City Centre Apartment
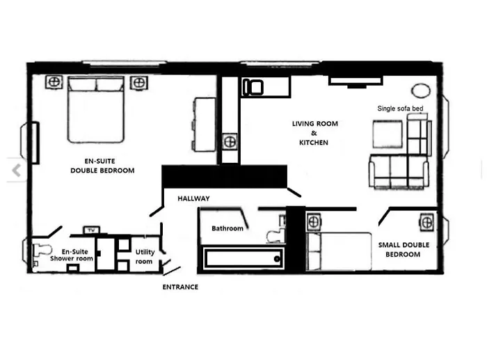
The 2-room Glasgow City Centre Apartment lies 25 minutes' walk from Kingston Bridge and 5 minutes' walk from Buchanan Street tube station. Guests will enjoy having Wi-Fi, and those with cars will appreciate public parking nearby.
You can take a 13-minute stroll and visit St Mungo Museum of Religious Life and Art. SEC Armadillo Auditorium is 25 minutes' walk away, and Glasgow Police Museum is a 5-minute walk from this 55 m^2 apartment.
A comprehensive selection of in-room comforts features a television, as well as ironing facilities. A stone fireplace can be found inside, along with a sofa. Beds fitted with feather down pillows are at guests' disposal. The bathroom comes with a bathtub, a walk-in shower, and a separate toilet. Furthermore, hair dryers is available.
Along with coffee and tea making equipment, self-catering facilities in a kitchen include a microwave oven, a fridge, and kitchenware. Central bus station is at a medium distance from Glasgow City Centre Apartment.
Amenities
Main Features
- Free Wi-Fi
- Express check-in/ -out
- Child-friendly
- No pets allowed
Facilities
- No smoking on site
- On-site car park
- Off-site car park
- VIP check-in/ -out
- Express check-in/ -out
- No pets allowed
- Security
- Smoke detectors
- Electric kettle
- Dryer
- Cookware/ Kitchen utensils
- Tours/Ticket assistance
- Free Wi-Fi in rooms
- Heating
- Sitting area
- Tea and coffee facilities
- Dining table
- Ironing facilities
- Washing machine
- Flat-screen TV
- Cots
- Carpeted floor
Policy
Map
Local Attractions
Attractions
- Prince's Square (700 m)
- Royal Concert Hall (1.1 km)
- Hampden Park (3.4 km)
- Merchant City (200 m)
- The Arc bridge (2.3 km)
- Kelvin Hall International Sports Arena (3.3 km)
- Buchanan Galleries (1000 m)
- George Square (650 m)
Airports
- Glasgow Airport (16 km)
Train stations
- Argyle Street Railway Station (400 m)
Reviews
100% Verified Reviews
John
2020-12-31
It's perfect for a family. Staff is always very very friendly. The host was friendly, and the location was unbeatable...